Architektur
Seit seiner Eröffnung im Jahr 2009 dient unser Showroom LAUFEN Forum unseren Fachpartner:innen sowie Privatpersonen als Inspirationsquelle. Das beeindruckende zweigeschossige Gebäude wurde von den namhaften Basler Architekten Nissen & Wentzlaff als nahtloser Monolith gestaltet. Gefertigt aus Sichtbeton, reflektiert seine Form in perfekter Harmonie die Designästhetik unserer Produkte.
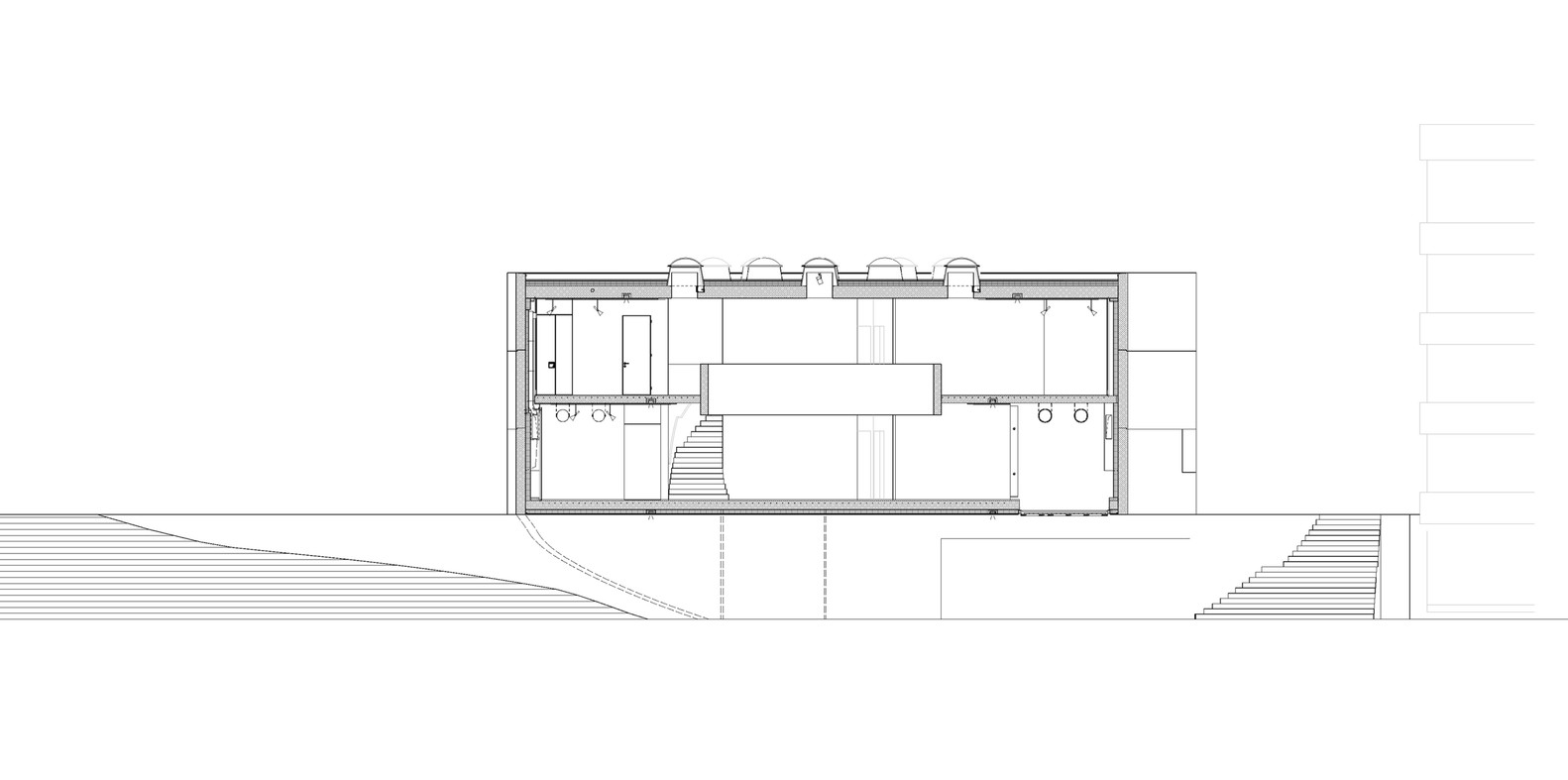
Das Bauwerk ist ein imposanter Monolith mit 6500 Kubikmetern Rauminhalt. Etliche genau definierte Radien bestimmen die Freiform des Gebäudes. Die Betonfassade wurde über beide Stockwerke hinweg in einer Schalung gegossen.
Das Lichtkonzept für dieses nahezu fensterlose Gebäude ist bis ins Detail durchdacht: Die Oberlichter im Dach versorgen das Atrium mit Tageslicht. Gleichzeitig sind diese Lichtkuppeln so platziert, dass sie über die jahreszeitliche Sonnenstandverschiebung hinweg die Produktpräsentation nicht beeinflussen. Die Produktwelten selbst werden mit Kunstlicht inszeniert.
Die Oberlichter spielen auch eine wichtige Rolle bei der Belüftung des Gebäudes: Zwischen den Schotten, die im Erdgeschoss die Ausstellungskojen trennen, sind Lamellenlüfter platziert. Zur Nachtauskühlung werden Oberlichter und Lamellenlüfter geöffnet. Rechnerisch orientiert sich dieses umweltfreundliche Klimakonzept am Jahrhundertsommer 2003: Selbst unter klimatischen Extrembedingungen sorgt die grosse Speichermasse des Betongebäudes für angenehme Temperaturen.
Die Dämmung der massiven Betonwände erfüllt Minergie-Standards. Im Bedarfsfalle wird das LAUFEN Forum über thermoaktive Decken (Thermoaktives Bauteilsystem TABS) beheizt. Eine kontrollierte Wohnraumlüftung des Gebäudes sorgt für eine ressourcenschonende und sichere Basislüftung: Zwei Mal in der Stunde wird die Luft umgewälzt.
Die Architekten haben den Showroom flächenschonend auf einer Hangkante platziert – zwei Drittel des Baus kragen über einen Parkplatz aus und werden nur von einem einzigen exzentrischen Punkt gestützt. Die Statik war deshalb eine echte Herausforderung für das auch im Brückenbau erfahrene Ingenieurbüro Walther Mory Maier aus Basel. Auch das Dach, eine Spannbetondecke mit 48 eingebauten Lichtkuppeln, erwies sich für Planer und Baumeister als äusserst anspruchsvoll: Die 44 Zentimeter dicke Betondecke wurde in 14 Stunden am Stück vergossen. In ihrem Inneren verbergen sich die zwölf dicken Stahlseile der Betonverspannung sowie die Ver- und Entsorgungsleitungen und Elektroinstallationen.
Im zweiten Halbjahr 2023 wurde der Innenausbau des LAUFEN Forums einer umfassenden Renovation unterzogen. In Zusammenarbeit mit dem renommierten Architekturbüro Snøhetta Architects wurde eine neue Erlebniswelt realisiert. Bereits beim Betreten des Gebäudes schafft die Auswahl der Materialien – von Stampflehm über Ton bis zu Messing und Stahl − eine unmittelbare Verbindung zur Entstehungsgeschichte der LAUFEN-Produkte. Weiter führt das Ausstellungskonzept die Besucher:innen durch vier einzigartige gestaltete Räume auf eine inspirierende Reise.
Während im Erdgeschoss hauptsächlich wohnlich eingerichtete Bäder als Inspirationsquelle zu finden sind, laden im Obergeschoss eine Vielzahl von verschiebbaren Keramiken und Armaturen zum individuellen Kombinieren ein. Die Küchenarmaturen sowie Spezialbereiche, wie beispielsweise Dusch-WCs, sind ebenfalls im Obergeschoss angesiedelt.
Quellen- und Herkunftsvermerke:
Architektur: Nissen & Wentzlaff Architekten, Basel. www.nwarch.ch
Bauingenieure: Walther Mory Maier, Basel. www.wmm.ch
Architekurfotografie: Ruedi Walti, Basel.







